一、事故概述和事故性质认定
2025年5月29日,湖北营润矿山建设有限公司驻大冶市兴红矿业有限公司项目部(以下简称营润项目部)作业人员在大冶市兴红矿业有限公司井下-587m分层排险过程中发生一起冒顶事故,造成一人死亡,直接经济损失约126.029万元。
事故发生后,省应急管理厅,国家矿山安全监察局湖北局,大冶市委、市政府,黄石市、大冶市应急管理局高度重视,第一时间赶赴事故现场指导事故应急处置工作。依照《中华人民共和国安全生产法》《生产安全事故报告和调查处理条例》和《湖北省生产安全事故报告和调查处理办法》等有关法律法规规定,2025年6月3日,经大冶市人民政府同意,成立由大冶市应急管理局牵头,大冶市公安局、大冶市总工会等单位组成的大冶市兴红矿业有限公司“5·29”一般冒顶片帮事故调查组,并邀请大冶市纪委监委派员参加,对事故进行调查。调查组委托黄石安良技术咨询有限公司对事故原因进行技术鉴定。
事故调查组按照“四不放过”和“科学严谨、依法依规、实事求是、注重实效”的原则,通过现场勘验、查阅资料、调查取证、检测鉴定和专家分析论证,查明了事故发生的原因、经过、人员伤亡和直接经济损失等情况,认定了事故性质和责任,提出了对有关责任人员和责任单位的处理建议,并针对事故原因及暴露出的问题,提出了事故防范措施。
经调查认定,该事故是一起因施工现场安全管理不到位,安全教育培训不扎实和作业人员超出自身工作职责从事排险作业造成的一般冒顶片帮生产安全责任事故。
二、事故基本情况
(一)事故发生单位概况
大冶市兴红矿业有限公司(以下简称兴红公司)
法定代表人:赵甫赐
企业类型:其他有限责任公司
统一社会信用代码:91420281753446437U
成立日期:2003-11-26
注册地址:大冶金湖街办红卫铜铁矿
经营范围:铁矿地下开采,矿产品加工及销售,矿山地质环境恢复治理工程服务。(涉及许可经营项目,应取得相关部门许可后方可经营)。
兴红公司位于大冶市金湖街道下四房村境内,由原国有大冶市红卫铜铁矿改制而成,是一家集采、选、充于一体的民营企业。兴红公司持有省自然资源和规划厅颁发的《采矿许可证》,证书编号:C4200002010112120079161,有效期为2022年8月5日至2030年8月30日,矿区范围0.1414平方公里,生产规模12万吨/年。持有湖北省应急管理厅颁发的《安全生产许可证》证书编号:(鄂)FM安许证(2025)020343号,有效期为2025年1月6日至 2028年 1月5日。
(二)事故其他相关单位
湖北营润矿山建设有限公司(以下简称营润公司)
法定代表人:庄明营
企业类型:有限责任公司(自然人投资或控股)
统一社会信用代码:9142070079878734X0
成立日期:2007-4-29
注册地址:鄂州市滨湖西路鸿盛大厦B座独单元12层4号
经营范围:许可项目:建设工程施工,爆破作业,道路货物运输(不含危险货物),建筑劳务分包。(依法须经批准的项目,经相关部门批准后方可开展经营活动,具体经营项目以相关部门批准文件或许可证件为准)。一般项目:工程技术服务(规划管理、勘察、设计、监理除外),选矿,装卸搬运,机械设备租赁,建筑材料销售,非金属矿及制品销售,金属矿石销售,土石方工程施工,建筑用石加工。(除许可业务外,可自主依法经营法律法规非禁止或限制的项目)。
营润公司持有湖北省应急管理厅颁发的《安全生产许可证》,证书编号:(鄂)FM安许证字(2023)080457;有效期为2023年2月13日至 2026年 2月12日。持有湖北省住房和城乡建设厅颁发的《安全生产许可证》,证书编号:(鄂)JZ安许证字(2014)0010234;有效期为2023年8月18日至 2026年 8月18日。持有湖北省住房和城乡建设厅颁发的《建筑业企业资质证书》,证书编号:D242002648,有效期为2024年6月27日至2029年6月21日。
营润公司主要经营爆破作业、金属矿石销售、土石方工程施工,2007年即取得鄂州市住房和城乡建设委员会批准的矿山工程施工总承包资格。该公司于2012年9月经湖北省住房和城乡建设厅核准为矿山工程施工总承包贰级企业,注册资金5618万元,下设1个处、2个办事处、13个项目部,机关设有7个职能处室,在职职工764人,具有各类专业管理人员139人,其中高级工程师5人、工程师38人、高级经济师2人、经济师5人、高级会计师1人、会计师3人、一级建造师3人、二级建造师16人、安全经理2人、安全员22人、中级爆破技术人员3人、特种作业人员87人。
(三)事故发生单位与事故其他相关单位之间的关系
2018年8月,兴红公司因工作需要,决定将井下采掘工程发包给营润公司。营润公司随即成立“湖北营润矿山建设有限公司驻大冶市兴红矿业公司项目部”,并与兴红公司签订了《采掘工程施工合同》。2024年3月26日,兴红公司与营润公司续签了《大冶市兴红矿业有限公司井下采掘工程施工合同》,合同有效期至2026年3月25日。合同明确工程名称:大冶市兴红矿业有限公司地面、井下采掘工程及其他附属工程;工程范围:坑采车间地面及井下所有中段;承包方式:采用直接费、辅助工种人工费和安全生产费用等总包干的承包方式。承包内容:1、地面及井下各中段采、出矿,平巷、天井及联道掘进,水沟掘砌,巷道、采场、天井、联道支护等;2、施工内容包括凿岩、爆破、出碴、出矿、掌子面通风、排水、提升、压(抽)风、照明、运输、轨道的辅设、风水管线安装、喷浆、浇灌及锚杆支护等。
兴红公司与营润公司签订了《非煤矿山外包工程安全生产管理协议》,明确双方的承诺、安全投入和资金保障、 安全设施和施工条件、隐患排查与治理、安全教育与培训、事故应急救援和安全检查与考评等主要内容。
(四)事故有关单位安全管理情况
1.安全管理机构情况
兴红公司设置了安全科、技术科、设备科、坑采车间、选矿车间、办公室、财务室、车队等科室,现有员工275人,其中中高级工程技术和经营管理人员32人;成立了以经理石教云为组长的安全生产领导小组;配备有安全总监张百华、总工程师丁三加、生产副经理冯润、机电副经理王伯泉;全公司安全管理人员共22名,专职安全员3人,经理石教云,安全总监张百华和安全管理人员周昊等均持有《安全生产知识和管理能力考核合格证》并在有效期内。
营润公司成立了驻兴红公司项目部,营润项目部共有职工103人,其中安全管理人员4人、五职人员5人(采矿负责人唐宏念、机电负责人宋登贤、地质负责人杨涛涛、测量负责人徐宜召、项目经理占汉文)、专职安全员3人、专职安全管理人员3人,支护工4人。营润项目部下设安全、生产、技术三个科室,三个作业班组,占汉文为项目经理,赵正兵为项目部生产副经理,孙胜兴为当班班长;项目部经理占汉文、赵正华、朱其俊等4人持有安全生产主要负责人资格证;安全管理人员赵正兵、梅光义、陈进国等7人持有《安全生产知识和管理能力考核合格证》,并在有效期内。
2.相关安全管理制度建立和执行情况
兴红公司编制了《顶板边帮分级管理制度》《特种作业管理制度》《安全检查工安全操作规程》《支柱工安全操作规程》《安全检查工岗位安全生产责任清单》等124项安全生产规章制度和37项安全操作规程。营润项目部主要执行兴红公司编制的安全生产规章制度和各项安全操作规程,同时自身也建立了55条安全管理制度和14条操作规程。事发当班井下作业人数共 56人,事发作业面 2 人。当天井下带班领导为安全总监张百华。企业为当事人购买了安全生产责任险和工伤保险。虽然各项制度建立的较为齐全,但是制度执行还存在不到位的情况,部分制度内容与国家相关规定、规范相冲突。
3.相关员工安全教育培训情况
死者朱福多,系营润公司驻兴红公司项目部作业人员,2023年10月6日至10月14日期间接受了入职三级安全教育培训,2023年10月28日正式入职营润公司驻兴红公司项目部,岗位为出矿工。2023年12月22日至12月23日接受了转岗三级教育培训,岗位变更为安全检查工。朱福多与营润公司签订的《劳动合同书》期限自2023年12月23日起,无固定期限。持有湖北省应急管理厅颁发的《特种作业操作证》,操作项目为金属非金属矿山安全检查作业(地下矿山),有效期2023年12月22日至2029年12月21日。朱福多正式上岗后还签订了《员工2025年岗位安全生产责任书》《企业员工安全承诺书》《员工安全生产责任清单》《师傅带徒弟协议书》等。2025年以来,参加了1月、2月、3月、4月、5月安全教育培训并考核合格,培训的主要内容为安全生产责任制、复工复产、顶板管理、应急处置、中毒窒息等。
(五)事故发生经过
2025年5月29日上午6时45分,项目部主管生产的副经理赵正兵组织召开班前会,布置当班主要工作是对-587m分层3#穿脉巷进出通道(使用砖墙)进行封堵,安排支护工肖艳兵对-576m和-587m分层的安全情况进行检查与排险,安排当班班长孙胜兴与风钻工焦开迎、安全检查工朱福多3人先搞好-587m分层的通风、照明,并将-570m中段的锚网、锚杆等支护材料搬运至-587m分层3#穿脉巷,做好支护作业的准备工作,同时交代安全措施,强调须待肖艳兵排险后方可开展支护作业。
7时左右,焦开迎与朱福多乘坐罐笼先行下井至-570m中段,与随后下井的孙胜兴从-570m中段向-587m分层搬运材料和工具;赵正兵与肖艳兵后下井至-570m中段,来到-576m分层进行顶板和边帮的安全检查和排险。
下井后,孙胜兴等三人一直从-570m中段向-587m分层搬运物资,在事故发生前孙胜兴和焦开迎在-570m中段休息一会,朱福多继续搬运材料独自前往-587m分层作业位置。
孙、焦二人休息结束后,焦开迎率先搬运材料走向-587m分层。一会后,孙胜兴也起身搬运材料走向-587m分层。
8时50分左右,焦开迎在距离支护作业面约十几米的巷道中听到“轰隆”一声响,急忙向前赶到事发地,看到朱福多仰面倒地,两块约一百多斤矿石压在其腿上,一根撬杠插入其身体右下腹部。
(六)事故现场情况
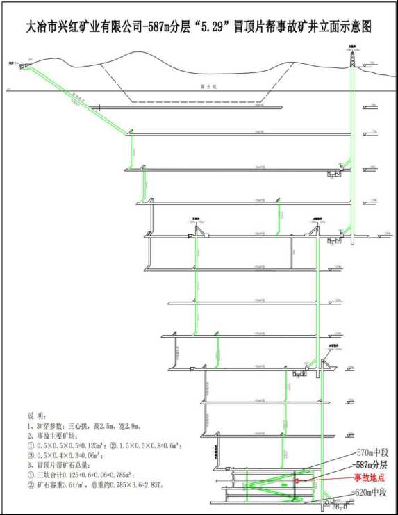
1.事故现场位置与布局。事故现场位于井下-620m中段-587m分层3#穿脉巷道内,该段巷道长32.7m、宽2.5m、高2.5m,原支护形式为锚网喷浆,巷道与-587m分层上盘运输巷相连接,左右两边分别是溜矿井和2#采场-587m分层拉底巷道。-587m分层3#穿脉巷道于2023年6月份施工完成,该穿脉位于-620m中段2#采场-598m分层上部,其下部采场于2025年3月底完成采出矿作业后即转入充填作业,计划于5月下旬完成充填(见图一、图二)。

(图一)

(图二)
2.冒落体情况。冒顶片帮垮落区域大约长3m、宽2.9m、厚0.5m,总体积约4.35m³,总重约4.35×3.6=15.66吨。垮落三块较大矿块:①.1.5×0.5×0.8=0.6m³,重约2.16吨; ②.0.5×0.5×0.5=0.125m³,重约0.45吨;③.0.5×0.4× 0.3=0.06m³,重约0.216吨。
3.事故现场现状。现场放置两根用于敲帮问顶的撬杠,直径25mm,长度分别为3m和2m,其中3m长撬杠被砸弯曲,撬杠旁遗留当事人的安全帽,垮落矿石下埋压一堆准备封堵用的红墙砖。事故现场入口放置有准备对冒顶片帮处支护加固的锚杆、锚网及使用工具等(见图三)。

(图三)
4.-587m分层3#穿脉巷道矿石结构。上盘为大理岩,下盘为火成岩,该穿脉矿体位于上下盘之间,矿体以铁矿石为主,较硬(普氏系数f8以上)、易碎,上下盘矿岩接触带处粘连度较差,节理、裂隙发育,易脱落垮塌;事故发生位置为矿体与岩石的接触带,地质条件较复杂(见图四)。

(图四)
5.作业面顶板情况。由于-620m中段2#采场回采过程中,受中深孔爆破震动等影响,造成-587m分层3#穿脉下盘矿岩接触巷道出现顶板局部开裂破损,存在安全风险,不适合在现状下继续开采;现场《顶板分级管理牌》中划分的风险为“三级”。3#穿脉从出口处至事故冒落处后方约2m处,已采取锚网喷浆方式支护,事故发生处和近期自然冒落处顶板采取锚杆喷浆方式支护(见图五、图六、图七、图八)。

(图五)

(图六)

(图七)

(图八)
6.作业面施工计划和施工程序。为消除采场回采对-587m分层以上区域的安全影响,矿方决定对3#穿脉及拉底巷进行封堵充填处理。2025年5月27日,在安排转运墙砖封堵材料过程中,矿方发现3#穿脉上下盘矿岩接触带处顶板局部开裂破损,决定对该处先采取锚网喷浆支护后,再进行砌砖墙封堵作业。5月29日,施工前准备工作包括通风、检测、安装照明等安全确认,将锚杆、网片等支护材料和工具搬运至工作面附近安全区域存放等;施工过程包括顶板及边帮排险、锚网支护作业、砌砖墙封堵等。
(七)事故人员伤亡和直接经济损失情况
1.人员伤亡情况。事故造成1人死亡,朱福多,男,39岁,重庆市云阳县云阳镇宝塔村1组39号。系营润项目部安全检查工。
2.直接经济损失情况。依据《企业职工伤亡事故经济损失统计标准》(GB6721-1986),核定事故直接经济损失约126.029万元人民币,主要为赔偿费用和丧葬费用等。
(八)天气及环境情况
大冶市地区2025年5月29日地面天气为多云转晴,气温17℃至29℃;9时左右,井下现场温度及照明等环境条件满足工作要求。
三、事故应急处置及评估情况
(一)事故信息接报及响应情况
11时05分,在兴红公司现场的经理石教云向大冶市应急管理局值班室电话报告了事故。
11时12分至15分,大冶市应急管理局值班室分别向大冶市政府总值班室、大冶市委总值班室、黄石市应急管理局值班室电话报告了事故情况。
11时23分,大冶市应急管理局向国家矿山安监局湖北局电话报告了事故情况。
11时50分,金湖街道向大冶市应急管理局值班室书面报告了事故情况。
11时55分至12时05分,大冶市应急管理局向大冶市政府总值班室、大冶市委总值班室、黄石市应急管理局值班室、国家矿山安监局湖北局书面报告了事故情况。
12时31分,大冶市应急管理局向省应急管理厅书面报告了事故情况。
接报事故后,省应急管理厅,国家矿山安全监察局湖北局,黄石市、大冶市应急管理局和属地政府立即赶赴现场开展事故处置工作。
(二)事故现场应急处置
8时50分左右,焦开迎发现朱福多受伤后,立刻上前试图搬开压在朱福多双腿上的矿石,但没有搬动。于是焦开迎便开始呼喊周边的工人来帮忙。在-587m分层3#穿脉巷拐弯处的孙胜兴听到焦开迎的呼喊后,立刻赶到现场,看到几块矿石压住朱福多双腿,一根撬毛杠插入朱福多右下腹部衣服里面。孙胜兴立即与焦开迎一同将朱福多身下的红砖搬开,焦开迎拔出插入朱福多身体的撬杠,两人共同将朱福多转移至矿石冒落点之外的安全位置,此时朱福多已经意识不清,但有呼吸。随后孙胜兴让焦开迎去-570m中段打电话向公司报告事故,自己则守在朱福多身旁。焦开迎在去往-570m中段的途中遇见兴红公司安全总监张百华和坑采车间副主任方峰松,焦开迎立即向其报告了事故情况。几分钟后,张百华随同焦开迎来到朱福多身边,发现朱福多神志不清,气息微弱。张百华便安排方峰松去-620m中段取来担架,共同将朱福多抬上担架转运至-570m中段,乘罐笼升井至地面。
9时左右,兴红公司井下管理人员向地面调度室报告了事故情况。调度室随即向兴红公司矿领导报告了事故情况。9时09分,兴红公司办公室拨打了120急救电话,请求医疗救援。因朱福多伤情不明,企业难以判断是否符合一般生产安全事故标准,所以先行组织伤者的救援和应急处置工作。
10时05分,朱福多到达地面后,等待在井口的大冶市人民医院救护人员立即对朱福多进行了急救。后经急救无效,现场宣布死亡。
(三)医疗救治和善后情况
9时左右,坑采车间副主任方峰松通过-570m中段应急电话向地面调度室报告了事故情况,调度室随即向矿领导做了报告。9时09分,兴红公司办公室拨打了120急救电话,请求医疗救援。9时21分,医务人员到达兴红公司,在井口等待朱福多升井。10时05分,朱福多升井后,现场医护人员立即对其进行了急救,随即现场宣布了朱福多急救无效死亡。2025年5月30日,营润公司与朱福多家属,达成赔偿和解协议,一次性赔偿死者家属伤亡补助金、家属抚恤金、丧葬补助金等。
(四)事故应急处置评估
事发后井下现场人员第一时间开始施救,并立即向地 面报告事故情况请求增派人员救援,拨打 120 急救电话,同时积极对伤员进行了施救和对事发现场进行了有效保护。医务人员在现场尽力对伤员进行抢救,政府主管部门到场参与现场处置工作,事故应急救援符合程序。
四、事故原因分析
-587m分层3#穿脉巷道受本区域矿石岩层结构和2#采场回采中深孔爆破震动等影响,造成其下盘矿岩接触巷道顶板局部出现开裂破损,不适合在现有条件下继续开采;为了消除采场回采对-587m分层以上区域的安全影响,矿方决定对3#穿脉及拉底巷进行封堵充填处理,并决定先锚网喷浆支护后,再进行砌砖墙封堵作业。朱福多持有安全检查作业资格证,其所持特种作业操作范围只限于“安全监督检查、巡检生产作业场所的安全设施和安全生产状况、检查并督促处理相应事故隐患的作业”。但朱福多协助搬运物资材料后,在其检查观察顶板险情中,没有遵从工作安排,在现场没有监护情况下,自行动手使用撬杠对危险作业面进行撬毛检查排险。
(一)直接原因分析
物的不安全状态:-587m分层3#穿脉巷道受本区域矿石岩层结构和2#采场回采中深孔爆破产生地压应力等影响,造成其下盘矿岩接触巷道顶板局部出现开裂破损。人的不安全行为:当事人朱福多对顶板存在冒落的安全风险辨识不足,擅自超越其所持《特种作业操作证》许可范围进行撬毛排险作业,且排险时站位不当,致使自己撬落的浮矿石砸中其所持撬杠,造成撬杠插入腹部,导致创伤性肠破裂致死。
(二)其他可能因素排除
通过公安机关、应急管理部门、相关安全技术服务机构 等对事故现场勘察、现场工人及管理人员询问和事故现场综 合分析,排除人为故意破坏、突发自然灾害、身体疾病等因 素。
(三)间接原因分析
1.外包单位作业现场安全管理不到位。一是当班班前会布置工作任务时,对人员分工、工作准备、工作监护等安排不够明确、细致和具体。二是作业人员下井后,管理人员对各施工面的总体协调不及时,总体安全管控不到位,事发时事发作业面没有其他安全管理人员在场,无人制止和纠正安全检查工朱福多的违章行为。
2.顶板风险分级管控与隐患排查治理双重预防机制落实不到位。一是风险辨识不准确,局部顶板风险分级不准确;二是没有对已排查出的隐患按照“五落实”的原则完成整改,导致在隐患整改过程中发生意外。
3.企业安全管理制度存在缺陷。企业《顶板边帮分级管理制度》《安全检查工安全操作规程》《安全检查工岗位安全责任制清单》《支柱工安全操作规程》等制度内容不够完善,对安全检查工岗位的工作职责及其责任范围规定不够准确、不够清晰。如《顶板边帮分级管理制度》中安全检查工的作业要求存在排险工作内容。
4.企业安全教育培训缺乏针对性。朱福多接受转岗三级安全教育考试考核的内容中《安全检查工安全操作规程》和《安全检查工岗位安全责任制清单》有关内容不足。企业仅仅依靠通用性或模板化培训材料进行教育,而忽视了员工特定工作领域可能存在的潜在风险与挑战,导致了员工无法真正理解岗位风险。
五、有关单位存在的主要问题
(一)营润公司。安全生产主体责任落实不到位,落实兴红公司《顶板边帮分级管理制度》《支柱工安全操作规程》等制度不到位;作业现场安全管理不到位。
(二)兴红公司。安全生产主体责任落实不到位,督促项目部落实公司《顶板边帮分级管理制度》《支柱工安全操作规程》制度不到位,制定的《顶板边帮分级管理制度》等安全管理规章制度不完善;技术管理人员风险意识不强,采场、巷道施工次序不科学;安全教育培训内容针对性差。
(三)市应急管理局。市应急管理局执法人员2025年以来对兴红公司进行了2次下井检查,查出安全隐患16条。2月10日检查指出该矿-576m、-587m分层及-620m中段2#采场悬挂的顶板分级管理牌板内容不全,未公示支护设计及附图等信息;4月17日检查指出该矿-576m分层5-2穿脉内支护层破碎脱落未及时处理等安全隐患,均督促兴红公司对安全隐患进行了整改。另外在重要节假日和暴雨天气都组织工作人员对矿山进行巡查,累计对该矿巡查3次。虽然市应急管理局执法人员按照执法计划对兴红公司进行了检查,但未发现企业安全规章制度、操作规程存在缺陷,教育培训针对性不强等问题。
(四)金湖街道。2025年以来对兴红公司检查4次、巡查4次,提出了加强-570m中段等重点区域加强顶帮板支护的工作意见。但是,大冶市推进乡镇(街道)履职事项清单编制,厘清上级部门与基层权责边界,破解基层治理“小马拉大车”突出问题还在进程中,未正式明确乡镇街道对矿山企业的安全监管职责。
六、对有关责任人员和责任单位的处理意见
(一)因在事故中死亡免予追究责任人员
朱福多,男,营润公司职工,个人岗位安全责任执行不到位,未持有金属非金属矿山支柱作业格证件的情况下,进行排险作业,违反企业《安全检查工安全操作规程》和《中华人民共和国安全生产法》第五十七条之规定,鉴于朱福多已死亡,不再追究其责任。
(二)对有关公职人员的处理建议
杨帆,男,中共党员,大冶市应急管理执法大队副大队长,矿一股负责人,负责大冶市民营矿山企业安全监管工作。督促企业落实安全生产主体责任工作不到位,对企业安全规章制度、操作规程等检查得不够仔细,监管措施不够精准,矿山安全生产治本攻坚三年行动工作成效不佳,责成大冶市应急管理局党委给予批评教育处理。
根据大冶市乡镇(街道)履职事项清单编制试点工作情况,建议对金湖街道党委政府履行安全生产属地管理职责相关人员不予责任追究。
(三)对事故有关责任人员和责任单位行政处罚建议
1.占汉文,男,群众,营润项目部项目经理,受公司法定代表人委托负责项目施工管理的各项工作。任职期间落实生产经营单位主要负责人对本单位安全生产工作职责不到位,未能督促项目部职工按照规章制度规范作业,对事故的发生负有领导责任。违反了《中华人民共和国安全生产法》第二十一条第(二)(五)项之规定,建议由大冶市应急管理局依据《中华人民共和国安全生产法》第九十五条之规定给予行政处罚。
2.赵正兵,男,群众,营润项目部生产副经理。事故当天在井下开展现场巡查和安全隐患排查工作。未能及时发现并制止朱福多的违章作业行为,对事故的发生负有责任。违反了《中华人民共和国安全生产法》第二十五条第(六)项之规定,建议由大冶市应急管理局依据《中华人民共和国安全生产法》第九十六条之规定给予行政处罚。
3.石教云,男,群众,兴红公司经理。任职期间落实生产经营单位主要负责人对本单位安全生产工作职责不到位,未能督促职工严格落实本单位制定的各项安全规章制度和操作规程,未能督促完善本单位与事故相关的各项安全规章制度和操作规程,对事故的发生负有领导责任。违反了《中华人民共和国安全生产法》第二十一条第(二)(五)项之规定,建议由大冶市应急管理局依据《中华人民共和国安全生产法》第九十五条之规定给予行政处罚。
4.张百华,男,中共党员,兴红公司安全总监,事故当班带班矿领导。未能完善本单位安全规章制度和操作规程,带班期间未能及时制止当事人的违章行为,对事故的发生负有责任。违反了《中华人民共和国安全生产法》第二十五条第(一)项之规定,建议由大冶市应急管理局依据《中华人民共和国安全生产法》第九十六条之规定给予行政处罚。
5.营润公司,施工现场的安全生产管理工作不到位,对已排查出的隐患未能按照“五落实”的原则,落实各项安全防护措施进行整改,未能督促作业人员严格执行本单位的安全生产规章制度和安全操作规程,对事故的发生负有责任,违反了《中华人民共和国安全生产法》第四十一条、第四十四条之规定,建议由大冶市应急管理局依据《中华人民共和国安全生产法》第一百一十四条之规定给予行政处罚。
6.兴红公司,未能完善本单位各项安全规章制度和操作规程,未能督促外协单位做好施工现场的安全管理,未能根据职工工作岗位针对性地开展安全教育培训工作,对事故的发生负有责任,违反了《中华人民共和国安全生产法》第二十条、《中华人民共和国安全生产法》第四十四条之规定,建议由大冶市应急管理局依据《中华人民共和国安全生产法》第一百一十四条之规定给予行政处罚。
(四)其他处理建议
市应急管理局未有效督促企业完善自身安全管理制度,未有效督促企业整改安全隐患,提升企业本质安全水平。责成向大冶市政府做检查。
七、事故主要教训
(一)主体责任落实不严。事故单位安全生产主体责任落实不到位,主要负责人履行第一责任人责任和安全管理人员履行安全生产法定职责不到位,导致企业安全教育培训不到位导致职工安全意识欠缺,风险辨识能力不够,安全规章制度、操作规程不完善等。
(二)汲取历年冒顶事故教训不深。我市近年来多次发生冒顶片帮事故,兴红公司未能吸取身边的教训,针对性地采取安全防范措施,导致同类问题屡查屡犯、事故重蹈覆辙。
(三)技术引领、科技兴安理念不足。企业没有根据技术原则科学规划采掘施工、布置巷道,导致开拓的巷道长期暴露不使用,加速了围岩性质的变化。说明企业对技术管理工作认识不足,没有树牢技术引领、科技兴安理念。
(四)安全生产监管不细不准。事故暴露出安全监管部 门执法对企业安全规章制度、操作规程等一些细节检查得不够仔细,督促企业开展教育培训针对性不强,监管措施不够精准,安全生产工作存在短板不足。
(五)外包安全管理不紧。矿山企业普遍存在外包单位,虽然矿山企业将自身的外包单位职工纳入了统一管理。但是未能做到一视同仁,矿山企业对外包单位职工的管理还存在懈怠和轻视的情况,外包安全抓得不紧。
八、事故整改和防范措施
(一)强化重点区域施工组织管理。一是对地质结构和矿岩复杂的采掘区域,要加强风险辨识,做好各项防控安全措施。二是各级人员要严格落实分级管控制度,切实做好职责范围内的巡视检查和监督管理工作。三是对已发现且存在较大风险安全隐患的整改,要加强组织管理,编制施工方案及组织措施。四是施工现场至少明确一名专职安全员到场把关,做好作业前的安全技术交底。五是要对人员分工、工作监护等安排明确、细致和具体,做到特种作业现场相关特种操作人员未到场不开工,相关管理人员未到场不开工。
(二)修订企业各项安全规章制度。进一步修订完善企业《特种作业管理制度》《顶板边帮分级管理制度》《安全检查工安全操作规程》和《安全检查工岗位安全责任制清单》等规章制度,准确、清晰地界定安全检查工岗位的工作职责及其责任范围,审慎确定存在冒落风险施工现场的管控级别,做到有章可循。
(三)扎实开展员工安全教育培训。要针对各工种、各岗位的特点进行安全教育培训,提高员工对断裂破碎带、节理密集带危险源的认识和其他伴生风险的辨识能力,并认真学习掌握安全作业及操作规程,按规程、规范进行监督和落实。凡未经特种作业培训、考试合格并持有特种作业证的从业人员,一律不得从事特种作业。
(四)加强外包施工单位安全管理。矿山企业要加强对自身外包单位的安全管理,健全完善外包作业管理制度,强化外包人员岗前培训,严格对外包单位职工的安全考核,实现企业员工和外包人员同步管理。
(五)厘清监管职责压实安全责任。要尽快明确乡镇(街道)对矿山企业的安全生产监管职责,按照分级分类的原则,切实落实属地党政领导责任、部门监管责任、企业主体责任,有效防范各类事故发生。
(六)提升事故应急处置能力。企业要加强对职工的应急知识教育培训,定期开展应急救援演练,配足配齐应急救援物资,提升了从业人员的安全意识和应对突发事件的应急处置能力。




