依据《中华人民共和国城乡规划法》、建设部《关于城乡规划公开公示的规定》和《市自然资源和规划局进一步明确建设工程( 民用建筑类)设计方案审查工作的通知》(黄自然资规函[2021]8号)等相关规定要求,对该项目的总平面图进行批前公示,公示时间为7个工作日。
建设单位名称:大冶嘉信房地产开发有限公司
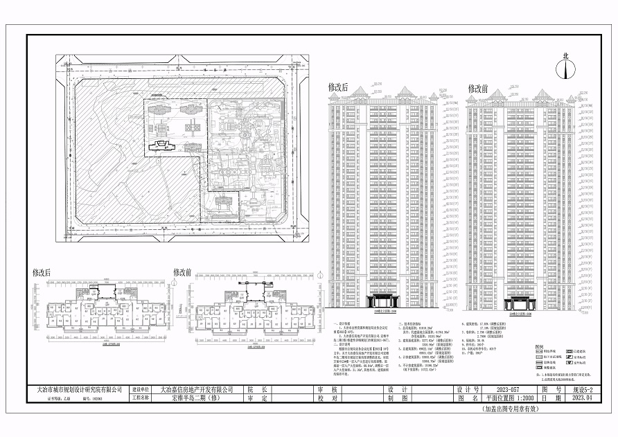
工程项目名称:宏维半岛(二期)修规划方案批前公示
建设规模:调整后大堂面积31.16㎡
公示日期:2023年4月18日——2023年4月26日(7个工作日)
公示部门:大冶市自然资源和规划局
信息网站公示:大冶市政府网公告公示专栏
现场公示:建设工程现场公示
联系方式:1.电话联系:
大冶市自然资源和规划局规划项目管理股
0714-8763523(咨询电话)
2.电子邮件:dysghjxzk@163.com
有效反馈意见需留真实姓名、联系方式、联系地址。本方案涉及的利害关系人,依法享有听证权。如需要听证,应在本方案公示期内向审批机关提出。
大冶市自然资源和规划局
2023年4月17日





